Chat with us on WhatsApp
1

Teren cu PUZ aprobat de vanzare, proiect 8 case, zona Gheorghe Doja, Oradea

255.000 €
Bihor-Oradea
COD Anunt:
V4306=P2624
Vizualizari:
50

Detalii despre anunt

Detalii teren
  • Deschidere teren:Drum
  • Tip teren:Intravilan
  • Suprafață teren:4251.00

Aprobari & Certificari
  • PUZ aprobat:PUZ Aprobat

Descriere
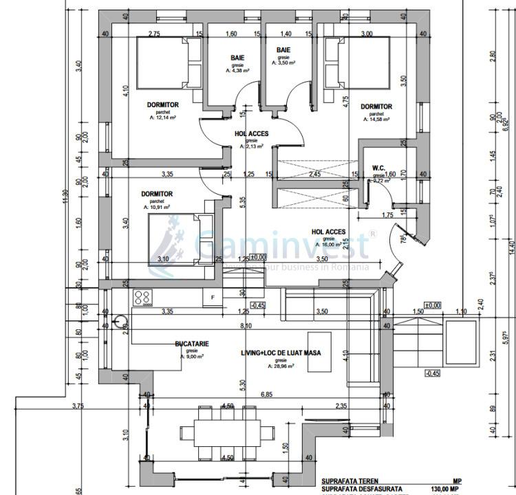
Gaminvest oferă spre vânzare un teren ideal pentru un proiect de dezvoltare imobiliară – 8 case individuale in zona Gheorghe Doja, Oradea– o zonă liniștită, dar în continuă expansiune, aflată la doar câteva minute de punctele de interes ale orașului.

Terenul are o suprafață totală de 4.251 mp și beneficiază de deschidere la 3 străzi, cu acces facil din drum asfaltat, ceea ce oferă o flexibilitate excelentă în organizarea loturilor și în valorificarea investiției.

Avantaje și caracteristici:

PUZ aprobat pentru dezmembrarea în 4 loturi, cu posibilitatea construirii a 8 case individuale pe parter.

Suprafață propusă pentru fiecare casă: aprox. 130 mp construiți, cu 3 dormitoare, 2 băi, hol și spații de depozitare – o compartimentare modernă și foarte căutată în piața rezidențială actuală, pe parcela cu o suprafata cuprinsa intre 450-470 mp, aproximativ

Toate utilitățile sunt disponibile pe teren: apă, curent electric, gaz, canalizare.
Această proprietate reprezintă o ocazie excelentă pentru investitori sau dezvoltatori imobiliari care caută un proiect clar, fezabil și cu potențial.
Expertiză geotehnică realizată, ceea ce permite demararea rapidă a procesului de autorizare și construcție.

Pret de vanzare propus de proprietar : 255000 euro,negociabil
Agentia nu percepe comision de la cumparator!

Utilitati
Dotari
Curent
Apa
Canalizare
Gaz

Detalii suplimetare
Caracteristici
  • Număr de fațade:3

Anunțuri din aceeași categorie

Description of image
Comision 0 Exclusiv

40.000 €

Teren pentru casa, de vanzare in Paleu, Oradea, Bihor

Paleu

Cod: V3020 - P466


Front stradal

15.56

Suprafata teren

650.00

Utilitati Teren: Curent, Apa, Canalizare, Curent trifazic, Utilitati in zona, Sistem irigatie


Description of image
Comision 0 Exclusiv

51.525 €

Parcela de 687 mp de vanzare, Sanmartin,Oradea

Sanmartin

Cod: V4398 - P2630


Front stradal

15.00

Suprafata teren

687.00

Utilitati Teren: Curent, Apa, Canalizare, Utilitati in zona, Oportunitate de investitie, Acces auto


Description of image
Comision 0

133.400 €

Teren extravilan de 5800 mp, cartier Balcescu, Oradea, Bihor

Oradea

Cod: V4012 - P1977


Front stradal

25.00

Suprafata teren

5800.00

Utilitati Teren: Utilitati in zona, Oportunitate de investitie


Description of image
Comision 0

28.200 €

Parcele de teren intravilan, la intrare in Paleu, 5 minute de Oradea

Paleu

Cod: V4305C - P2629


Front stradal

23.00

Suprafata teren

470.00

Utilitati Teren: Curent, Apa


Description of image
Comision 0

285.000 €

De vânzare teren 595 mp și 3 case semifinisate în Cartierul Tineretului, Oradea

Oradea

Cod: V4306A - P2627


Suprafata teren

595.00

Utilitati Teren: Curent, Apa, Canalizare, Gaz


Description of image
Comision 0

45.000 €

Teren intravilan, 1000mp in Biharia, Bihor

Biharia

Cod: V3933 - P1851


Front stradal

16.00

Suprafata teren

1000.00

Description of image
Comision 0

19.900 €

Teren intravilan la 15 minute de Oradea, Bihor

Betfia

Cod: V41404 - P2120


Front stradal

39.00

Suprafata teren

526.00

Utilitati Teren: Curent, Apa, Canalizare, Utilitati in zona


Description of image
Comision 0 Exclusiv

34.000 €

Teren intravilan de vanzare, Paleu, Bihor

Paleu

Cod: V4312 - P2429


Front stradal

24.00

Suprafata teren

1200.00

Utilitati Teren: Curent, Oportunitate de investitie, Acces auto


Description of image
Comision 0

70.880 €

Teren pentru casa, de vanzare, zona Adevarului, Oradea, Bihor

Oradea

Cod: v3662 - P1303


Front stradal

23.00

Suprafata teren

886.00

Utilitati Teren: Utilitati in zona, Oportunitate de investitie


Description of image
Comision 0

28.000 €

Teren intravilan in Santandrei, de vanzare, Bihor

Santandrei

Cod: v3484 - P1113


Front stradal

16.00

Suprafata teren

491.00

Utilitati Teren: Utilitati in zona


Description of image
Comision 0

230.000 €

Teren intravilan 2300 mp, Calea Clujului, Oradea, Bihor

Oradea

Cod: v3906 - P1925


Front stradal

89.00

Suprafata teren

2319.00

Utilitati Teren: Utilitati in zona, Oportunitate de investitie, La sosea, Acces auto


Description of image
Comision 0

338.000 €

Teren intravilan 4200 mp , zona Gheorghe Doja, Oradea, Bihor

Oradea

Cod: v3905 - P1937


Suprafata teren

4226.00

Utilitati Teren: Utilitati in zona, Oportunitate de investitie


Description of image
Comision 0

30.950 €

Parcele de teren intravilan de vanzare, Paleu, Bihor

Paleu

Cod: V3004 - P454


Front stradal

15.00

Suprafata teren

619.00

Utilitati Teren: Curent, Apa, Canalizare


Description of image
Comision 0 Exclusiv

34.500 €

Teren intravilan 4418 mp, plus 2 containere de locuit, Lazareni, Bihor

Gruilung

Cod: v3770 - P2021


Front stradal

35.00

Suprafata teren

4418.00

Utilitati Teren: Curent, Apa, Acces internet, Sistem irigatie, Oportunitate de investitie, Acces auto, Teren imprejmuit


Description of image
Comision 0 Exclusiv

30.000 €

Teren de 417 mp in Paleu, Bihor

Paleu

Cod: v3659 - P1302


Front stradal

15.00

Suprafata teren

417.00

Utilitati Teren: Curent, Apa, Canalizare, Gaz, Oportunitate de investitie


Description of image
Comision 0 Exclusiv

274.640 €

Teren intravilan 6900 mp, dublu front, Cheriu, Bihor

Cheriu

Cod: v4054 - P2055


Front stradal

23.00

Suprafata teren

6866.00

Utilitati Teren: Utilitati in zona, Oportunitate de investitie, Parcelabil


Description of image
Comision 0

110.000 €

Teren intravilan de 3250 mp in Podgoria, de vanzare, Bihor

Oradea

Cod: v3270 - P1119


Front stradal

40.00

Suprafata teren

3250.00

Utilitati Teren: Curent, Canalizare, Utilitati in zona, Oportunitate de investitie, Teren imprejmuit


Description of image
Comision 0

320.000 €

Teren intravilan mixt de vanzare zona Ogorului, Oradea, Bihor

Oradea

Cod: v3830 - P1656


Front stradal

120.00

Suprafata teren

2874.00

Utilitati Teren: Curent, Apa, Canalizare, Oportunitate de investitie, La sosea, Acces auto


Description of image
Comision 0

34.000 €

Teren de vanzare cu autorizatie de constructie, zona Metro Oradea, Judetul Bihor

Oradea

Cod: V3204 - P1475


Front stradal

11.00

Suprafata teren

252.00

Utilitati Teren: Curent, Apa, Canalizare, Gaz, Curent trifazic, Utilitati in zona, Sistem irigatie


Description of image
Comision 0 Exclusiv

340.000 €

Teren cu imobil de vanzare, zona Metro, Oradea, Bihor

Oradea

Cod: V1528A - P133


Front stradal

32.00

Suprafata teren

8500.00

Description of image
Comision 0

135.000 €

Teren intravilan de vanzare, zona de dealuri, Oradea, Bihor

Oradea

Cod: V2216 - P85


Front stradal

30.00

Suprafata teren

1200.00

Utilitati Teren: Curent, Apa, Canalizare, Gaz


Description of image
Comision 0 Exclusiv

42.000 €

Teren cu constructie in Gepiu, Bihor

Gepiu

Cod: V4220 - P2464


Front stradal

32.00

Suprafata teren

600.00

Utilitati Teren: Curent, Apa, Fosa septica, Telefon, Acces internet, Acces auto, Teren imprejmuit


Description of image
Comision 0 Exclusiv

550.000 €

Teren extravilan 12699 mp, zona Industriala vest Episcopia, Oradea, Bihor

Oradea

Cod: v4010 - P2014


Front stradal

100.00

Suprafata teren

12699.00

Utilitati Teren: Curent, Utilitati in zona, Oportunitate de investitie, Parcelabil, La sosea, Acces auto


Description of image
Comision 0

157.000 €

Teren intravilan 1.120 mp de vanzare in Oradea, zona Clujului, Bihor

Oradea

Cod: V3279 - P882


Suprafata teren

1120.00

Utilitati Teren: Curent, Apa, Canalizare, Gaz, Oportunitate de investitie, Constructie demolabila, La sosea, Acces auto


Description of image
Comision 0

85.120 €

Teren intravilan de vanzare la E79, Hidiselu de sus, Bihor

Hidiselu de Sus

Cod: V2730 - P333


Front stradal

65.00

Suprafata teren

4480.00

Utilitati Teren: Canalizare, Parcelabil


Description of image
Comision 0 Exclusiv

14.000 €

Teren intravilan de 500 mp, la 9 km de Oradea, Livada de Bihor

Livada de Bihor

Cod: v3839 - P1677


Front stradal

15.00

Suprafata teren

500.00

Utilitati Teren: Utilitati in zona, Oportunitate de investitie


Description of image
Comision 0 Exclusiv

29.500 €

Teren intravilan 4418 mp, Lazareni, Bihor

Gruilung

Cod: v3770a - P1973


Front stradal

35.00

Suprafata teren

4418.00

Utilitati Teren: Curent, Apa, Acces internet, Oportunitate de investitie, Parcelabil, Acces auto, Teren imprejmuit


Description of image
Comision 0

98.580 €

Teren intravilan de vanzare, Osorhei, Bihor

Osorhei

Cod: V2910 - P401


Front stradal

67.00

Suprafata teren

3286.00

Utilitati Teren: Curent, Apa, Oportunitate de investitie


Description of image
Comision 0

100.176 €

Teren intravilan de vanzare in Saldabagiu de Munte, Bihor

Saldabagiu de Munte

Cod: V3183 - P205


Front stradal

50.00

Suprafata teren

6261.00

Description of image
Comision 0

38.513 €

Teren intravilan cu priveliste deosebita spre lac, Paleu, Bihor

Paleu

Cod: V4203 - P2249


Suprafata teren

2027.00

Utilitati Teren: Canalizare, Oportunitate de investitie, La sosea


Nu ți-ai găsit încă imobil? Introdu mai jos cerințele tale!

Imobiliare

Vânzare și închiriere apartamente, case, vile, spații comericale. terenuri, hale industriale, oportunități și afaceri de vânzare in Oradea și Bihor

Infiintare Firme

Înființări firme Online, oriunde în Romania și servicii de înființare societăți comerciale SRL, PFA, Asociații, ONG-uri și Întreprinderi Individuale serviciul premium direct în Biroul din Oradea

Contabilitate

Birou de contabilitate autorizat C.E.C.C.A.R, Cabinet Contabili și Expert Contabil în Oradea și Servicii de Contabilitate Online oriunde în România

Recrutare Personal

Servicii de selectie și recrutare personal în Romania și locuri de muncă în străinătate, servicii adresate companiilor straine sau din România

Asigurări

Birou de Asigurări în Oradea, de la polițe RCA auto, la asigurări pentru imobil, pentru firmă, asigurări de companie, asigurări de viață și de sănătate, soluții personalizate!

Credite

Soluții complete de Creditare și finanțare pentru persoane fizice și companii, prin intermediul băncilor partenere, cu 0% Comision - Credit Oradea

De ce să alegi Gaminvest?

Iată ce ne recomandă pe piața serviciilor .

Standarde profesionale

Onestitate și transparență față de toate părțile implicare. Gaminvest se bucura de o reputație excelentă de-alungul anilor și un o creștere constantă a numărului de clienți deserviți și multumiți. Respectăm principii de etică și confidențialitate, reprezentând interesele clienților noștri.

Experiență și expertiză

Cu o prezență constantă pe piața imobiliară din Oradea și în sectorul serviciilor precum înființare firme, contabilitate, recrutare și altele, Grupul Gaminvest este o companie inovatoare cu reputație solidă în Oradea, Bihor și în întreaga țară.

Servicii profesionale

Ne remarcam printr-o gamă variată de servicii de înaltă calitate, fiind recunoscuți pentru standardele ridicate pe care le avem, atenția la detalii și rezultatele extraordinare obținute pentru clienții noștri!

Personal instruit și certificat

Echipa noastră cuprinde contabili experți și agenți imobiliari profesioniști specializați care sunt certificați și beneficiază de instruire continuă în domeniul lor de activitate.

Galerie foto

Te invităm la un tur vizual al biroului nostru pentru a descoperi atmosfera și a ne cunoaște mai bine!

Slide
Slide
Slide
Slide
Slide
Slide
Slide
Slide
Slide
Slide

Ultimele proprietati adaugate

Urmareste ultimele noutati si alege proprietatea care ti se potriveste

Description of image
Comision 0

28.200 €

Parcele de teren intravilan, la intrare in Paleu, 5 minute de Oradea

Paleu

Cod: V4305C - P2629


Front stradal 23.00
Suprafata teren 470.00

Utilitati Teren:

Curent, Apa


Description of image
Comision 0

34.000 €

Teren de vanzare cu autorizatie de constructie, zona Metro Oradea, Judetul Bihor

Oradea

Cod: V3204 - P1475


Front stradal 11.00
Suprafata teren 252.00

Utilitati Teren:

Curent, Apa, Canalizare, Gaz, Curent trifazic, Utilitati in zona, Sistem irigatie


Description of image
Comision 0

133.400 €

Teren extravilan de 5800 mp, cartier Balcescu, Oradea, Bihor

Oradea

Cod: V4012 - P1977


Front stradal 25.00
Suprafata teren 5800.00

Utilitati Teren:

Utilitati in zona, Oportunitate de investitie


Description of image
Comision 0 Exclusiv

30.000 €

Teren de 417 mp in Paleu, Bihor

Paleu

Cod: v3659 - P1302


Front stradal 15.00
Suprafata teren 417.00

Utilitati Teren:

Curent, Apa, Canalizare, Gaz, Oportunitate de investitie


Description of image
Comision 0

620.000 €

Vila pe 3 nivele, de vanzare, Oradea, Bihor

Oradea

Cod: v3497 - P1163


Camere

5

Bai

4

Suprafata teren

1800.00

Description of image
Comision 0 Exclusiv

34.000 €

Teren intravilan de vanzare, Paleu, Bihor

Paleu

Cod: V4312 - P2429


Front stradal 24.00
Suprafata teren 1200.00

Utilitati Teren:

Curent, Oportunitate de investitie, Acces auto


Description of image
Comision 0

269.000 €

Casa cu 5 camere, singur in curte, zona Decebal, Oradea, Bihor

Oradea

Cod: v3828 - P1651


Camere

5

Bai

2

MP

210.00

Suprafata teren

189.00

Description of image
Comision 0

30.950 €

Parcele de teren intravilan de vanzare, Paleu, Bihor

Paleu

Cod: V3004 - P454


Front stradal 15.00
Suprafata teren 619.00

Utilitati Teren:

Curent, Apa, Canalizare


Description of image
Comision 0

75.000 €

Apartament cu 1 camera si balcon,Onestilor,Iosia,Oradea

Oradea

Cod: V4286 - P2494


Camere

1

Bai

1

Etaj

1

370 €

Apartament cu 2 camere, zona Nufarul, Oradea, Bihor

Oradea

Cod: A2553 - P2553


Camere

2

Bai

1

Etaj

3

Description of image
Comision 0

45.000 €

Teren intravilan, 1000mp in Biharia, Bihor

Biharia

Cod: V3933 - P1851


Front stradal 16.00
Suprafata teren 1000.00

Description of image
Comision 0

70.880 €

Teren pentru casa, de vanzare, zona Adevarului, Oradea, Bihor

Oradea

Cod: v3662 - P1303


Front stradal 23.00
Suprafata teren 886.00

Utilitati Teren:

Utilitati in zona, Oportunitate de investitie


Description of image
Comision 0

110.000 €

Teren intravilan de 3250 mp in Podgoria, de vanzare, Bihor

Oradea

Cod: v3270 - P1119


Front stradal 40.00
Suprafata teren 3250.00

Utilitati Teren:

Curent, Canalizare, Utilitati in zona, Oportunitate de investitie, Teren imprejmuit


Description of image
Comision 0 Exclusiv

40.000 €

Teren pentru casa, de vanzare in Paleu, Oradea, Bihor

Paleu

Cod: V3020 - P466


Front stradal 15.56
Suprafata teren 650.00

Utilitati Teren:

Curent, Apa, Canalizare, Curent trifazic, Utilitati in zona, Sistem irigatie


Description of image
Comision 0

28.000 €

Teren intravilan in Santandrei, de vanzare, Bihor

Santandrei

Cod: v3484 - P1113


Front stradal 16.00
Suprafata teren 491.00

Utilitati Teren:

Utilitati in zona


Description of image
Comision 0

230.000 €

Teren intravilan 2300 mp, Calea Clujului, Oradea, Bihor

Oradea

Cod: v3906 - P1925


Front stradal 89.00
Suprafata teren 2319.00

Utilitati Teren:

Utilitati in zona, Oportunitate de investitie, La sosea, Acces auto


Description of image
Comision 0

285.000 €

De vânzare teren 595 mp și 3 case semifinisate în Cartierul Tineretului, Oradea

Oradea

Cod: V4306A - P2627


Suprafata teren 595.00

Utilitati Teren:

Curent, Apa, Canalizare, Gaz


Description of image
Comision 0

19.900 €

Teren intravilan la 15 minute de Oradea, Bihor

Betfia

Cod: V41404 - P2120


Front stradal 39.00
Suprafata teren 526.00

Utilitati Teren:

Curent, Apa, Canalizare, Utilitati in zona


Description of image
Comision 0 Exclusiv

300.000 €

Casa singur in curte,Ciorogariu, Oradea, Bihor V3298

Oradea

Cod: V3298 - P916


Camere

4

Bai

3

MP

250.00

Suprafata teren

281.00

Description of image
Comision 0 Exclusiv

274.640 €

Teren intravilan 6900 mp, dublu front, Cheriu, Bihor

Cheriu

Cod: v4054 - P2055


Front stradal 23.00
Suprafata teren 6866.00

Utilitati Teren:

Utilitati in zona, Oportunitate de investitie, Parcelabil


Description of image
Comision 0 Exclusiv

51.525 €

Parcela de 687 mp de vanzare, Sanmartin,Oradea

Sanmartin

Cod: V4398 - P2630


Front stradal 15.00
Suprafata teren 687.00

Utilitati Teren:

Curent, Apa, Canalizare, Utilitati in zona, Oportunitate de investitie, Acces auto


Description of image
Comision 0

120.000 €

Casa noua situata la 15 km de Oradea de vanzare , Bihor

Tarian

Cod: V4178 - P2424


Camere

4

Bai

1

MP

116.00

Suprafata teren

516.00

Description of image
Comision 0 Exclusiv

34.500 €

Teren intravilan 4418 mp, plus 2 containere de locuit, Lazareni, Bihor

Gruilung

Cod: v3770 - P2021


Front stradal 35.00
Suprafata teren 4418.00

Utilitati Teren:

Curent, Apa, Acces internet, Sistem irigatie, Oportunitate de investitie, Acces auto, Teren imprejmuit


Description of image
Comision 0

169.500 €

Apartament cu 3 camere si terasa de vanzare, Zona Ceyrat,Oradea

Oradea

Cod: V4285 - P2471


Camere

3

Bai

2

Etaj

4

Description of image
Comision 0

76.000 €

Casa de vanzare, 30 km de Oradea, Bihor V3140

Dusesti

Cod: V3140 - P655


Camere

4

Bai

2

MP

160.00

Suprafata teren

1000.00

Description of image
Comision 0

338.000 €

Teren intravilan 4200 mp , zona Gheorghe Doja, Oradea, Bihor

Oradea

Cod: v3905 - P1937


Suprafata teren 4226.00

Utilitati Teren:

Utilitati in zona, Oportunitate de investitie


Description of image
Comision 0

320.000 €

Teren intravilan mixt de vanzare zona Ogorului, Oradea, Bihor

Oradea

Cod: v3830 - P1656


Front stradal 120.00
Suprafata teren 2874.00

Utilitati Teren:

Curent, Apa, Canalizare, Oportunitate de investitie, La sosea, Acces auto


Description of image
Comision 0 Exclusiv

48.500 €

Casa cu teren 2500 mp, Poclusa de Barcau, Bihor

Poclusa de Barcau

Cod: v3863 - P1933


Camere

3

Bai

1

MP

80.00

Suprafata teren

2500.00

Description of image
Comision 0

285.000 €

De vânzare teren 595 mp și 3 case semifinisate în Cartierul Tineretului, Oradea

Oradea

Cod: V4306A - P2627


Camere

0

Bai

0

MP

310.00

Suprafata teren

595.00

Locuri de munca

Anajează-mă! Iată care sunt profilele de candidati disponibili pentru compania ta!

Ultimele anunturi personal de recrutat

Recruteaza din personalul disponibil

Proprietati în exclusivitate

Mai jos găsiți ofertele imobiliare cu reprezentanță exclusivă Gaminvest

Property Image
Property Image
Property Image
Property Image
Property Image
Property Image

51.525 €

Parcela de 687 mp de vanzare, Sanmartin,Oradea

Sanmartin

Cod: V4398 - P2630


Front stradal

15.00

Suprafata teren

687.00

Utilitati Teren: Curent, Apa, Canalizare, Utilitati in zona, Oportunitate de investitie, Acces auto


86.500 €

Apartament ultracentral cu doua dormitoare si loc de parcare,Oradea,Bihor

Oradea

Cod: V4341 - P2622


Camere

2

Bai

1

Etaj

Parter

499.748 €

Teren extravilan de 12,5 ha,de vanzare,langa Oradea,Livada,Bihor

Livada de Bihor

Cod: V4400 - P2608


Suprafata teren

124937.00

Utilitati Teren: Utilitati in zona, Oportunitate de investitie, Parcelabil, Acces auto


1.664.000 €

Teren intravilan de vanzare, 66400 mp, langa Oradea, Bihor

Biharia

Cod: V4117 - P2596


Front stradal

110.00

Suprafata teren

66400.00

Utilitati Teren: Curent, Utilitati in zona, Oportunitate de investitie, Parcelabil, Acces auto


149.000 €

Casa moderna de vanzare, Cauciu Vechi,Bihor

Cacuciu Vechi

Cod: V4342 - P2595


Camere

4

Bai

2

MP

108.00

Suprafata teren

1755.00

34.800 €

Teren intravilan in Fancica,Bihor

Fancica

Cod: V4351 - P2571


Front stradal

18.00

Suprafata teren

2321.00

Utilitati Teren: Curent, Apa, Canalizare, Utilitati in zona, La sosea






Oferte populare

Descopera cele mai populare oferte

Noutăți, știri, comunicate

Fii la curent cu noutățile din Piața afacerilor, imobiliare și contabilitate! Abonează-te!



Suna acum Trimite mesaj