Chat with us on WhatsApp
1

Spatiu comercial de vanzare in Oradea, cartierul Nufarul

70.000 €
Bihor-Oradea
COD Anunt:
V4593 - P3206
Vizualizari:
24
Suprafata utila:
55.10

Detalii despre anunt

Interior
Dormitoare
  • Număr camere:5

Descriere
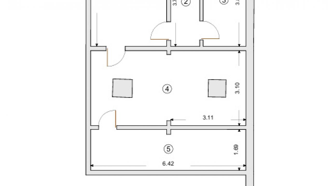
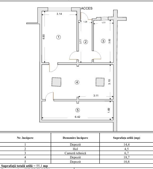
Gaminvest va propune spre vanzare spatiu comercial in Oradea, in cartierul Nufarul.

Spatiul masoara 55 mp utili, este dispus pe plan parter si este format din hol de acces si 4 camere.
Acesta beneficiaza de acces facil si este pretabil pt diverse activitati, spatii de brouri, magazine, cabinete notariale, saloane de frizerie canina, saloane de infrumusetare si multe altele.
Spatiul dispune de racordare la apa, canalizare si energie electrica, incalzire spatiul se face prin intermediul termoficarii oraseneasca iar in fata spatiului sunt locuri de parcare de domiciliu.

Pretul de vanzare 70000 euro + TVA

Agentia nu percepe comision de la cumparator!

Pentru stabilirea unei vizionari sau mai multe detalii va stam la dispozitie.

Utilitati
Dotari
Curent
Apa
Canalizare
Termoficare

Detalii suplimetare
Caracteristici
  • Structură clădire:Caramida
  • Tip clădire:1

Anunțuri din aceeași categorie

Description of image
Comision 0 Exclusiv
Description of image
Comision 0 Exclusiv
Description of image
Comision 0 Exclusiv
Description of image
Comision 0 Exclusiv

89.900 €

Spatiu comercial de vanzare,Calea Clujului,Oradea,Bihor

Oradea

Cod: V4234 - P2308


MP

100.00

Description of image
Comision 0 Exclusiv

295.000 €

Spatiu comercial de vanzare, in apropiere de Oradea, Bihor

Curtuiseni

Cod: V4365 - P2811


MP

340.00

Cauți un imobil pentru achizitie? Introdu mai jos cerințele tale și alfă ce este disponibil!

Imobiliare

Vânzare și închiriere apartamente, case, vile, spații comericale. terenuri, hale industriale, oportunități și afaceri de vânzare in Oradea și Bihor

Infiintare Firme

Înființări firme Online, oriunde în Romania și servicii de înființare societăți comerciale SRL, PFA, Asociații, ONG-uri și Întreprinderi Individuale serviciul premium direct în Biroul din Oradea

Contabilitate

Birou de contabilitate autorizat C.E.C.C.A.R, Cabinet Contabili și Expert Contabil în Oradea și Servicii de Contabilitate Online oriunde în România

Asigurări

Birou de Asigurări în Oradea, de la polițe RCA auto, la asigurări pentru imobil, pentru firmă, asigurări de companie, asigurări de viață și de sănătate, soluții personalizate!

Credite

Soluții complete de Creditare și finanțare pentru persoane fizice și companii, prin intermediul băncilor partenere, cu 0% Comision - Credit Oradea

De ce să alegi Gaminvest?

Iată ce ne recomandă pe piața serviciilor .

Standarde profesionale

Onestitate și transparență față de toate părțile implicare. Gaminvest se bucura de o reputație excelentă de-alungul anilor și un o creștere constantă a numărului de clienți deserviți și multumiți. Respectăm principii de etică și confidențialitate, reprezentând interesele clienților noștri.

Experiență și expertiză

Cu o prezență constantă pe piața imobiliară din Oradea și în sectorul serviciilor precum înființare firme, contabilitate, recrutare și altele, Grupul Gaminvest este o companie inovatoare cu reputație solidă în Oradea, Bihor și în întreaga țară.

Servicii profesionale

Ne remarcam printr-o gamă variată de servicii de înaltă calitate, fiind recunoscuți pentru standardele ridicate pe care le avem, atenția la detalii și rezultatele extraordinare obținute pentru clienții noștri!

Personal instruit și certificat

Echipa noastră cuprinde contabili experți și agenți imobiliari profesioniști specializați care sunt certificați și beneficiază de instruire continuă în domeniul lor de activitate.

Galerie foto

Te invităm la un tur vizual al biroului nostru pentru a descoperi atmosfera și a ne cunoaște mai bine!

Slide
Slide
Slide
Slide
Slide
Slide
Slide
Slide
Slide
Slide

Ultimele proprietati adaugate

Urmareste ultimele noutati si alege proprietatea care ti se potriveste

Description of image
Comision 0 Exclusiv

8.000 €

Hala Industriala de inchiriat langa Alesd la E60, 1800 mp, Bihor

Grosi

Cod: V4597a - P3203


Suprafata utila

1800.00

MP

1800.00

Inaltime

5.50

Description of image
Comision 0

199.000 €

Oradea

Cod: V4593B - P3208


MP

131.10

Description of image
Comision 0

8.500 €

Teren de vanzare in Cetariu, iesire directa la lac, 14 km de Oradea

Cetariu

Cod: V4588B - P3180


Front stradal 10.00
Suprafata teren 2252.00

Description of image
Comision 0 Exclusiv

1.500 €

Hala pentru depozitare de inchiriat langa Alesd la E60, 400 mp, Bihor

Grosi

Cod: V4597c - P3205


Suprafata utila

400.00

MP

400.00

Inaltime

5.50

Description of image
Comision 0

118.500 €

Apartament cu 3 camere de vanzare in Oradea, zona centrala

Oradea

Cod: V4060 - P3041


Camere

3

Bai

2

Etaj

Parter

Description of image
Comision 0

140.000 €

Oradea

Cod: V4593A - P3207


MP

86.50

Description of image
Comision 0 Exclusiv

86.500 €

Apartament cu 2 camere de vanzare in Oradea, zona Apostol Andrei

Oradea

Cod: V4441 - P3202


Camere

2

Bai

1

Etaj

4

Description of image
Comision 0 Exclusiv

6.500 €

Hala Industriala de inchiriat langa Alesd la E60, 1400 mp, Bihor

Grosi

Cod: V4597b - P3204


Suprafata utila

1400.00

MP

1400.00

Inaltime

5.50

Description of image
Comision 0 Exclusiv

88.000 €

Apartament cu 3 camere de vanzare, zona Cantemir, Oradea, Bihor

Oradea

Cod: V4459 - P2833


Camere

3

Bai

1

Etaj

5

Description of image
Comision 0

70.000 €

Spatiu comercial de vanzare in Oradea, cartierul Nufarul

Oradea

Cod: V4593 - P3206


MP

55.10

Description of image
Comision 0 Exclusiv

1.350.000 €

Hala Industriala de vanzare, 1800 mp la E60 la 5 km de Alesd, Bihor

Grosi

Cod: V4597 - P3200


Suprafata utila

1800.00

MP

1800.00

Inaltime

5.50

Description of image
Comision 0

225.000 €

Teren cu PUZ aprobat de vanzare, proiect 8 case, zona Gheorghe Doja, Oradea

Oradea

Cod: V4306 - P2624


Suprafata teren 4251.00

Utilitati Teren:

Curent, Apa, Canalizare, Gaz


Description of image
Comision 0 Exclusiv

160.000 €

Gospodarie cu atelier si livada de vanzare in Felcheriu, Bihor

Felcheriu

Cod: V4567 - P3026


Camere

5

Bai

3

MP

260.00

Suprafata teren

3316.00

900 €

Casa cu 4 camere de inchiriat, Oradea, Central, 160 mp singur in curte

Oradea

Cod: V4602 - P3201


Camere

4

Bai

2

MP

160.00

Suprafata teren

350.00

Description of image
Comision 0

92.000 €

Apartament cu 3 camere de vânzare, Oradea, Rogerius, 85mp utili

Oradea

Cod: V4378 - P3038


Camere

3

Bai

2

Etaj

5

Description of image
Comision 0

104.900 €

Apartament de vanzare in Oradea cu 4 camere , 91 mp utili, zona Decebal

Oradea

Cod: V4532 - P3028


Camere

4

Bai

1

Etaj

8

Description of image
Comision 0

125.000 €

Apartament cu 3 camere de vanzare, Oradea, zona ultracentrala, aproape de teatru

Oradea

Cod: V4028 - P3039


Camere

3

Bai

1

Etaj

Parter

Description of image
Comision 0

155.000 €

Casa de vanzare la 10 minute de Oradea, Les

Les

Cod: V4596 - P3192


Camere

4

Bai

3

MP

125.00

Suprafata teren

961.00

Description of image
Comision 0

65.000 €

Spatiu comercial de vanzare in Oradea, cartierul Nufarul

Oradea

Cod: V4593D - P3210


MP

26.80

500 €

Apartament de inchiriat in Oradea cu 3 camere in Luceafarul

Oradea

Cod: A2696 - P3199


Camere

3

Bai

2

Etaj

8

Description of image
Comision 0

175.000 €

Casa noua de vanzare in Oradea, Cartierul Viena

Oradea

Cod: V4423 - P3196


Camere

4

Bai

2

MP

102.06

Suprafata teren

434.00

Description of image
Comision 0

105.000 €

Casa de vanzare Calea Clujului, Oradea, Bihor

Oradea

Cod: V3753 - P1494


Camere

3

Bai

1

MP

90.00

Suprafata teren

652.00

550 €

Apartament 3 camere de inchiriat in Oradea, zona centrala

Oradea

Cod: A2736 - P3145


Camere

3

Bai

2

Etaj

1

Description of image
Comision 0

165.000 €

Spatiu comercial de vanzare in Oradea, cartierul Nufarul

Oradea

Cod: V4593C - P3209


MP

101.50

Description of image
Comision 0

88.000 €

Apartament de vanzare in Oradea cu 2 camere la parter pe str. Splaiul Crisanei

Oradea

Cod: V4579 - P3178


Camere

2

Bai

1

Etaj

Parter

Proprietati în exclusivitate

Mai jos găsiți ofertele imobiliare cu reprezentanță exclusivă Gaminvest

Property Image
Property Image
Property Image
Property Image
Property Image
Property Image

1.500 €

Hala pentru depozitare de inchiriat langa Alesd la E60, 400 mp, Bihor

Grosi

Cod: V4597c - P3205


Suprafata utila

400.00

MP

400.00

Inaltime

5.50

6.500 €

Hala Industriala de inchiriat langa Alesd la E60, 1400 mp, Bihor

Grosi

Cod: V4597b - P3204


Suprafata utila

1400.00

MP

1400.00

Inaltime

5.50

8.000 €

Hala Industriala de inchiriat langa Alesd la E60, 1800 mp, Bihor

Grosi

Cod: V4597a - P3203


Suprafata utila

1800.00

MP

1800.00

Inaltime

5.50

86.500 €

Apartament cu 2 camere de vanzare in Oradea, zona Apostol Andrei

Oradea

Cod: V4441 - P3202


Camere

2

Bai

1

Etaj

4

1.350.000 €

Hala Industriala de vanzare, 1800 mp la E60 la 5 km de Alesd, Bihor

Grosi

Cod: V4597 - P3200


Suprafata utila

1800.00

MP

1800.00

Inaltime

5.50

394.550 €

Teren intravilan 15782 mp cu deschidere la E60 de vanzare in Auseu, Bihor

Auseu

Cod: V4541d-P3193


Front stradal

48.00

Suprafata teren

15782.00

Utilitati Teren: Curent, Apa, Canalizare






Oportunități de investiții

Descopera cele mai populare oferte

Noutăți, știri, comunicate

Fii la curent cu noutățile din Piața afacerilor, imobiliare și contabilitate! Abonează-te!

Market Trends by Gaminvest - Vanzari terenuri Bihor

Piața terenurilor în Bihor – datele lunii decembrie Conform datelor oficiale, luna decembrie a confirmat o activitate constantă pe segmentul terenurilor, chiar dacă este, în mod tradițional, o perioadă mai lentă pentru tranzacții imobiliare.

Spatiu comercial in Iosia, Oradea

Inca o tranzactie finalizata cu succes - Spatiu comercial in Iosia bloc nou, Oradea, vandut prin Gaminvest



Suna acum Trimite mesaj