Chat with us on WhatsApp
1

Clădire multifuncțională pentru investiție: hotel sau apartamente, Oradea,Bihor

1.490.000 €
Bihor-Oradea
COD Anunt:
V4522 - P2885
Vizualizari:
233
Suprafata construita:
2360.00

Detalii despre anunt

Interior
Dormitoare
  • Număr camere:28
Bucatarie & Baie
  • Număr băi:30

Descriere
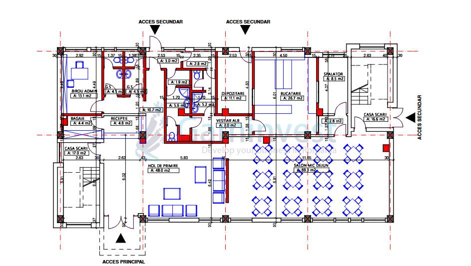
Gaminvest propune spre vânzare o clădire cu destinație de hotel, situată în Oradea, județul Bihor, oportunitate ideală pentru investitori.

Imobilul are o suprafață construită la sol de 590 mp și este dispus pe parter și 3 etaje, cu o suprafață desfășurată totală de 2.360 mp, fiind prevăzut cu locuri de parcare, amenajata.

La parter se află un spațiu open-space, bucătărie, grupuri sanitare și birou, iar etajele sunt compartimentate în 9 camere la etajul 1, 10 camere la etajul 2 și 9 camere la etajul 3. Toate camerele dispun de băi proprii, iar bucătăriile sunt amplasate pe holuri. Din total, 19 camere sunt duble, 6 sunt triple și 3 sunt apartamente, capacitatea actuală de cazare fiind de aproximativ 97 de persoane.

În curte există și o construcție separată, formată din două apartamente a câte 90 mp fiecare, cu trei camere, baie și bucătărie. Întreaga proprietate a fost complet renovată, incluzând instalațiile electrice și sanitare, finisajele, sistemul de încălzire și tâmplăria PVC.

Clădirea beneficiază de acces facil către zona industrială și centura orașului și oferă posibilitatea de recompartimentare și amenajare în apartamente, ceea ce îi conferă flexibilitate și multiple variante de exploatare.
În prezent, imobilul este închiriat integral, generând venituri constante, cu un randament de aproximativ 8%.
Incalzirea este asigurata cu centrala proprie pe gaz.

Prețul de vânzare este de 1.490.000 euro, negociabil, iar agenția nu percepe comision de la cumpărător.

Utilitati
Dotari
Curent
Apa
Canalizare
Gaz

Anunțuri din aceeași categorie

Description of image
Comision 0

0 €

Cladire noua cu 9 apartamente si spatiu comercial de vanzare, Oradea, Bihor

Oradea

Cod: V4094 - P2638


Suprafata construita

321.00

Description of image
Comision 0 Exclusiv

950.000 €

Afacere de 4 stele de vanzare in Vadul Crisului, Bihor, Romania

Oradea

Cod: V4254 - P2649


Suprafata construita

615.00

Description of image
Comision 0 Exclusiv

480.000 €

Pensiune cu 8 camere de vanzare in Cihei, Sânmartin , Bihor

Cihei

Cod: V4497 - P2841


MP

265.00

Description of image
Comision 0
Description of image
Comision 0 Exclusiv

350.000 €

Pensiune noua moderna cu 5 dormitoare, Cordau, Bihor

Cordau

Cod: v3728 - P1495


MP

361.85

Cauți un imobil pentru achizitie? Introdu mai jos cerințele tale și alfă ce este disponibil!

Imobiliare

Vânzare și închiriere apartamente, case, vile, spații comericale. terenuri, hale industriale, oportunități și afaceri de vânzare in Oradea și Bihor

Infiintare Firme

Înființări firme Online, oriunde în Romania și servicii de înființare societăți comerciale SRL, PFA, Asociații, ONG-uri și Întreprinderi Individuale serviciul premium direct în Biroul din Oradea

Contabilitate

Birou de contabilitate autorizat C.E.C.C.A.R, Cabinet Contabili și Expert Contabil în Oradea și Servicii de Contabilitate Online oriunde în România

Asigurări

Birou de Asigurări în Oradea, de la polițe RCA auto, la asigurări pentru imobil, pentru firmă, asigurări de companie, asigurări de viață și de sănătate, soluții personalizate!

Credite

Soluții complete de Creditare și finanțare pentru persoane fizice și companii, prin intermediul băncilor partenere, cu 0% Comision - Credit Oradea

De ce să alegi Gaminvest?

Iată ce ne recomandă pe piața serviciilor .

Standarde profesionale

Onestitate și transparență față de toate părțile implicare. Gaminvest se bucura de o reputație excelentă de-alungul anilor și un o creștere constantă a numărului de clienți deserviți și multumiți. Respectăm principii de etică și confidențialitate, reprezentând interesele clienților noștri.

Experiență și expertiză

Cu o prezență constantă pe piața imobiliară din Oradea și în sectorul serviciilor precum înființare firme, contabilitate, recrutare și altele, Grupul Gaminvest este o companie inovatoare cu reputație solidă în Oradea, Bihor și în întreaga țară.

Servicii profesionale

Ne remarcam printr-o gamă variată de servicii de înaltă calitate, fiind recunoscuți pentru standardele ridicate pe care le avem, atenția la detalii și rezultatele extraordinare obținute pentru clienții noștri!

Personal instruit și certificat

Echipa noastră cuprinde contabili experți și agenți imobiliari profesioniști specializați care sunt certificați și beneficiază de instruire continuă în domeniul lor de activitate.

Galerie foto

Te invităm la un tur vizual al biroului nostru pentru a descoperi atmosfera și a ne cunoaște mai bine!

Slide
Slide
Slide
Slide
Slide
Slide
Slide
Slide
Slide
Slide

Ultimele proprietati adaugate

Urmareste ultimele noutati si alege proprietatea care ti se potriveste

Description of image
Comision 0 Exclusiv

42.000 €

Apartament de vanzare in Oradea, zona centrala, strada Cuza Voda

Oradea

Cod: V3700A - P3045


Camere

2

Bai

1

Etaj

Parter

Description of image
Comision 0

159.000 €

Apartament cu 3 camere de vanzare, Oradea, zona centrala, imediat ocupabil

Oradea

Cod: V4027 - P3040


Camere

3

Bai

1

Etaj

Parter

Description of image
Comision 0 Exclusiv

249.000 €

Vilă și fosta fermă 8300 mp în Valea lui Mihai, Bihor

Valea lui Mihai

Cod: V4213 - P2543


Camere

4

Bai

1

MP

164.00

Suprafata teren

8313.00

Description of image
Comision 0

170.000 €

Apartament nou de vanzare in Oradea cu terasă si parcare zona Ceyrat

Oradea

Cod: V4357 - P2515


Camere

3

Bai

2

Etaj

4

Description of image
Comision 0

92.008 €

Teren intravilan de vanzare, Osorhei, Bihor

Osorhei

Cod: V2910 - P401


Front stradal 67.00
Suprafata teren 3286.00

Utilitati Teren:

Curent, Apa, Oportunitate de investitie


Description of image
Comision 0

760.000 €

Teren de vanzare in Biharia, cu o suprafata de 20000 mp intravilan

Biharia

Cod: V4214 - P3035


Front stradal 50.00
Suprafata teren 20000.00

Utilitati Teren:

Apa, Canalizare, Utilitati in zona


Description of image
Comision 0

132.000 €

Apartament 4 camere de vânzare, Oradea, Splaiul Crișanei, 77mp utili

Oradea

Cod: V4403 - P3042


Camere

4

Bai

1

Etaj

4

350 €

Apartament 3 camere de inchiriat in Rogerius, Oradea

Oradea

Cod: A2630 - P2687


Camere

3

Bai

1

Etaj

5

Description of image
Comision 0

65.000 €

Teren intravilan de 1117 mp ,front 19 ml in apropiere de Calea Bihorului ,Oradea

Oradea

Cod: V4375 - P2813


Front stradal 19.00
Suprafata teren 1117.00

Utilitati Teren:

Teren imprejmuit


Description of image
Comision 0

99.800 €

Apartament cu 3 camere de vânzare, Oradea, Rogerius, 85mp utili

Oradea

Cod: V4378 - P3038


Camere

3

Bai

2

Etaj

5

Description of image
Comision 0 Exclusiv

92.000 €

Doua apartamente de vanzare in Oradea, zona centrala, Cuza Voda

Oradea

Cod: V3700 -P3044


Camere

4

Bai

2

Description of image
Comision 0 Exclusiv

50.000 €

Apartament cu 2 camere de vanzare in Oradea, zona centrala.

Oradea

Cod: V3700B - P3043


Camere

2

Bai

1

Etaj

Parter

Description of image
Comision 0

68.500 €

Apartament Nou, complet mobilat, 2 Camere, Paleu, Bihor

Paleu

Cod: V4376 - P2578


Camere

2

Bai

1

Etaj

3

Description of image
Comision 0

123.000 €

Casa cu teren de 1439mp de vanzare in Osorhei, Bihor, imediat ocupabila

Osorhei

Cod: V4452 - P2723


Camere

3

Bai

1

MP

140.00

Description of image
Comision 0 Exclusiv

84.900 €

Apartament cu 2 camere de vanzare, bloc nou, Baile Felix, Bihor

Cordau

Cod: V4242 - P2396


Camere

2

Bai

1

Etaj

1

Description of image
Exclusiv

80.000 €

Teren intravilan de vanzare in Santandrei, 1000 mp aproape de Oradea

Santandrei

Cod: V4337 - P2643


Front stradal 42.00
Suprafata teren 1000.00

Description of image
Comision 0

458.000 €

De vanzare cladire multifunctionala zona Seleusului, Oradea

Oradea

Cod: V4253 - P2261


Suprafata construita

192.00

Description of image
Comision 0

120.000 €

Apartament cu 3 camere de vanzare in Oradea, zona centrala

Oradea

Cod: V4060 - P3041


Camere

3

Bai

2

Etaj

Parter

Description of image
Comision 0

125.000 €

Apartament cu 3 camere de vanzare, Oradea, zona ultracentrala, aproape de teatru

Oradea

Cod: V4028 - P3039


Camere

3

Bai

1

Etaj

Parter

320 €

Apartament de inchiriat, zona Bulevardul Dacia,Oradea, Bihor

Oradea

Cod: A2620 - P2981


Camere

2

Bai

1

Etaj

2

Description of image
Comision 0

195.000 €

Casă ultracentrală cu apartament și demisol, zona Republicii pietonala, Oradea

Oradea

Cod: V4206 - P2583


Camere

5

Bai

1

Etaj

Parter

Description of image
Comision 0

269.000 €

Casa de vanzare in Oradea, cu 5 camere, singur in curte, zona Decebal

Oradea

Cod: v3828 - P1651


Camere

5

Bai

2

MP

210.00

Suprafata teren

189.00

Description of image
Comision 0 Exclusiv

300.000 €

Casa de vanzare in Oradea, singur in curte zona strazii R. Ciorogariu

Oradea

Cod: V3298 - P916


Camere

4

Bai

3

MP

250.00

Suprafata teren

281.00

Description of image
Comision 0

180.000 €

Apartament cu 3 camere de vanzare in Oradea, ultracentral zona Vladimirescu

Oradea

Cod: V4059 - P3037


Camere

3

Bai

2

Etaj

8

Description of image
Comision 0 Exclusiv

43.000 €

Teren intravilan de vanzare in Alesd, Bihor, 1400 mp

Alesd

Cod: V4334 - P2477


Suprafata teren 1409.00

Description of image
Comision 0 Exclusiv

325.000 €

Casa de vanzare in Oradea, in zona de case Nufarul, 133mp, calitate premium

Oradea

Cod: V4444 - P3027


Camere

4

Bai

2

MP

133.87

Suprafata teren

700.00

3.048 €

Spatiu de birouri de inchiriat, ultracentral, Oradea

Oradea

Cod: A2000 - P2999


Suprafata utila

381.00

MP

381.00

Description of image
Comision 0 Exclusiv

697.550 €

Teren intravilan de vanzare in Oradea, 9965 mp, Bihor

Oradea

Cod: V4281 - P2392


Front stradal 36.60
Suprafata teren 9965.00

Utilitati Teren:

Oportunitate de investitie, Parcelabil


Proprietati în exclusivitate

Mai jos găsiți ofertele imobiliare cu reprezentanță exclusivă Gaminvest

Property Image
Property Image
Property Image
Property Image
Property Image
Property Image

42.000 €

Apartament de vanzare in Oradea, zona centrala, strada Cuza Voda

Oradea

Cod: V3700A - P3045


Camere

2

Bai

1

Etaj

Parter

92.000 €

Doua apartamente de vanzare in Oradea, zona centrala, Cuza Voda

Oradea

Cod: V3700 -P3044


Camere

4

Bai

2

50.000 €

Apartament cu 2 camere de vanzare in Oradea, zona centrala.

Oradea

Cod: V3700B - P3043


Camere

2

Bai

1

Etaj

Parter

499.959 €

Teren de vanzare in Oradea 12700 mp langa Autostrada A3, in zona Episcopia

Oradea

Cod: v4010 -P3033


Front stradal

100.00

Suprafata teren

12699.00

Utilitati Teren: Curent, Utilitati in zona, Oportunitate de investitie, Parcelabil, La sosea, Acces auto


73.000 €

Apartament de vanzare cu 2 camere Oradea, Aluminei

Oradea

Cod: V4410 - P3032


Camere

2

Bai

1

Etaj

Parter

325.000 €

Casa de vanzare in Oradea, in zona de case Nufarul, 133mp, calitate premium

Oradea

Cod: V4444 - P3027


Camere

4

Bai

2

MP

133.87

Suprafata teren

700.00





Oportunități de investiții

Descopera cele mai populare oferte

Noutăți, știri, comunicate

Fii la curent cu noutățile din Piața afacerilor, imobiliare și contabilitate! Abonează-te!

Market Trends by Gaminvest - Vanzari terenuri Bihor

Piața terenurilor în Bihor – datele lunii decembrie Conform datelor oficiale, luna decembrie a confirmat o activitate constantă pe segmentul terenurilor, chiar dacă este, în mod tradițional, o perioadă mai lentă pentru tranzacții imobiliare.

Spatiu comercial in Iosia, Oradea

Inca o tranzactie finalizata cu succes - Spatiu comercial in Iosia bloc nou, Oradea, vandut prin Gaminvest

Teren 11509 mp Aeroport Oradea

Vanzare efectuata cu succes teren industrial langa Aeroportul International din Oradea tranzactionata prin intermediul agentiei Imobiliare Gaminvest



Suna acum Trimite mesaj